- Woonoppervlakte
- Circa 127 m²
- Perceeloppervlakte
- Circa 156 m²
- Bouwjaar
- Gebouwd in 1971
- Aantal kamers
- 5 kamers (4 slaapkamers)
WT WONEN BIEDT AAN: LAGUNE 19 IN LELYSTAD.
Deze eengezinswoning ligt op loop- en fietsafstand van het stadscentrum van Lelystad. U kunt parkeren op eigen terrein aan de voorkant van het huis. De woning staat op een perceel van 156 m2 eigen grond en heeft onder andere een grote woonkamer die gericht is op de tuin. De ingebouwde keuken heeft diverse apparatuur. Op de eerste verdieping zijn 3 ruime slaapkamers en een basis badkamer. De tweede verdieping heeft een vierde slaapkamer en een zonnig dakterras. De zonnige tuin ligt op het westen.
Wilt u wonen op een vrije locatie dichtbij alle nodige voorzieningen?
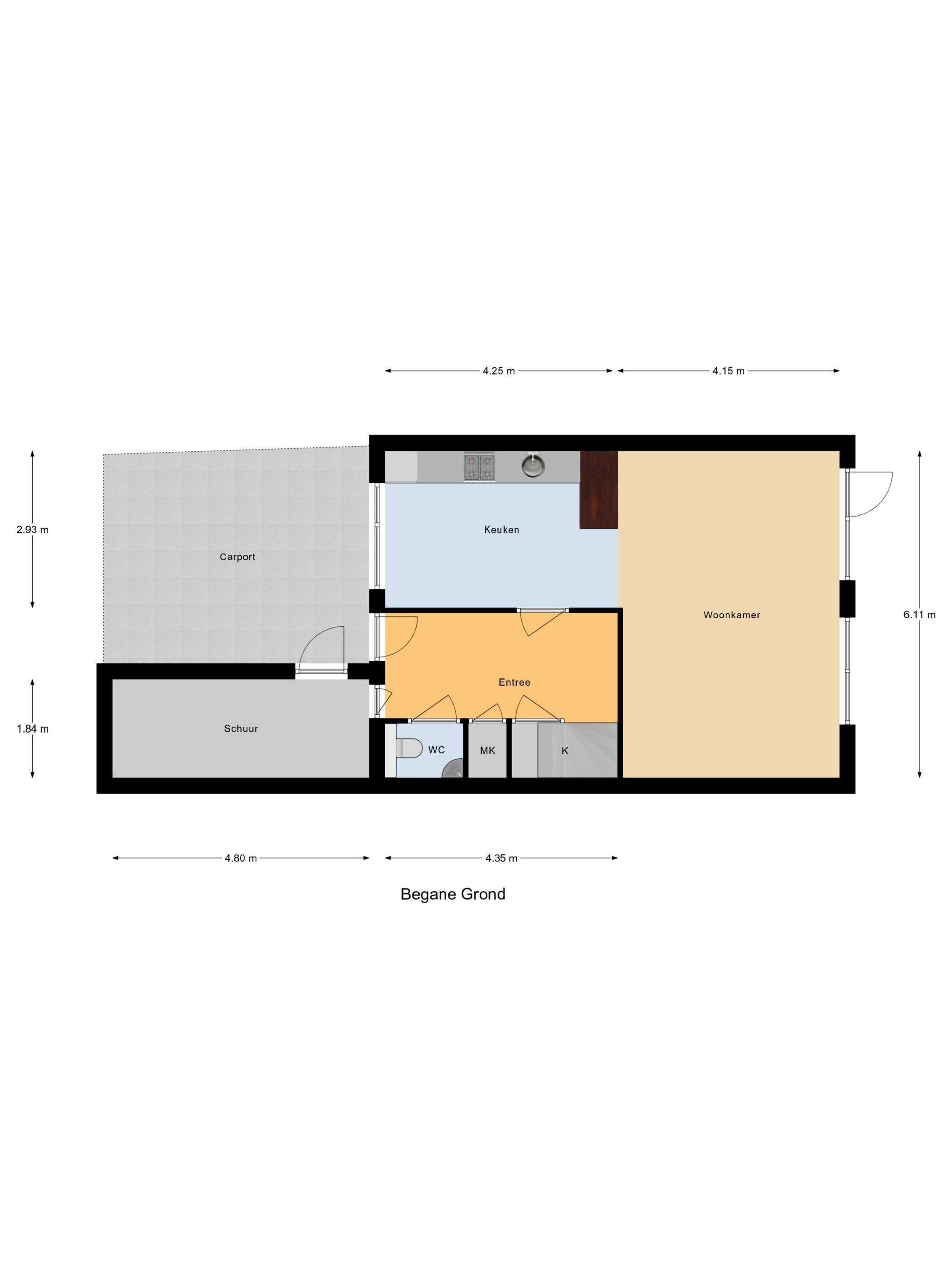
INDELING
U komt binnen in de ruime hal met de meterkast, een trapkast en het toilet met fonteintje. Vanuit de hal kunt u naar de aangebouwde berging. De ingebouwde keuken heeft verschillende apparatuur. Door de ruimte is er plek voor een grote eettafel. De ruime, tuingerichte woonkamer heeft een deur naar de zonnige tuin op het westen.
EERSTE VERDIEPING
Hier vindt u 3 ruime slaapkamers, overloop en de basis badkamer. De badkamer heeft een douche, bad, wastafel, een tweede toilet, een radiator en een raam voor daglicht en ventilatie. Vaste trap naar de tweede verdieping.
TWEEDE VERDIEPING
Vanaf de overloop heeft u toegang tot het zonnige dakterras. Er is een vierde, royale slaapkamer en een technische ruimte/berging. Hier is de opstelplaats voor de CV-ketel en er zijn aansluitmogelijkheden voor de wasmachine en wasdroger.
DAKTERRAS
Het zonnige dakterras op het westen is te bereiken vanaf de overloop op de tweede verdieping.
TUIN
De aangelegde tuin op het westen heeft onder andere verschillende beplanting en een houten berging achterin de tuin. U parkeert aan de voorzijde van de woning. Er is veel parkeergelegenheid in de omgeving.
BIJZONDERHEDEN
- Zonnige tuin (en dakterras) op het westen.
- Gelegen op loop- en fietsafstand van het stadscentrum van Lelystad.
- Parkeren op eigen terrein.
- 4 slaapkamers.
- Bouwjaar 1971.
- 156 m2 eigen grond.
- Oplevering in overleg.
- Energielabel D.
PRIJS: € 275.000,- KOSTEN KOPER (KK) Lees de volledige omschrijving
Overdracht
- Vraagprijs
- € 275.000 k.k.
- Status
- Verkocht onder voorbehoud
- Aanvaarding
- Per direct beschikbaar
Bouw
- Object type
- Eengezinswoning, tussenwoning
- Soort bouw
- Bestaande bouw
- Bouwjaar
- 1971
Oppervlakte en inhoud
- Woonoppervlakte
- 127 m²
- Perceeloppervlakte
- 156 m²
- Inhoud
- 475 m³
- Externe bergruimte
- 9 m²
Indeling
- Aantal kamers
- 5 kamers (4 slaapkamers)
- Aantal badkamers
- 1 badkamer en 1 apart toilet
- Badkamervoorzieningen
- Douche, ligbad, toilet, en wastafel
- Aantal woonlagen
- 3 woonlagen
- Voorzieningen
- Glasvezelkabel en TV kabel
Energie
- Energielabel
- D
- Energielabel registratie
- 12-10-2025
Buitenruimte
- Ligging
- Aan park en in woonwijk
- Balkon / dakterras
- Dakterras aanwezig
- Tuin
- Achtertuin en voortuin
- Afmetingen achtertuin
- 79 m² (13,00 meter diep en 6,10 meter breed)
- ligging tuin
- Gelegen op het westen en
Parkeergelegenheid
- Soort parkeergelegenheid
- Op eigen terrein en openbaar parkeren
Energieverbruik in Lelystad
Energielabel deze woning
Energielabel D
Publicatie energielabel: 12-10-2025
Stroomverbruik per jaar
(Gemiddelde tussenwoning in Lelystad)
Gasverbruik per jaar
(Gemiddelde tussenwoning in Lelystad)
* Cijfers zijn afkomstig van het CBS en bedoeld als indicatie en kunnen verschillen voor deze woning
Indicatie hypotheeklasten
Eigen inleg:
Spaargeld / overwaarde
Rente:
Laagste 10-jaars rente
Laagste 10-jaars rente
2,88% - Centraal Beheer Groen... - NHG
3,1% - Argenta Groen Hypotheek... - 80%
Laagste 20-jaars rente
3,19% - Centraal Beheer Groen... - NHG
3,47% - Argenta Groen Hypothee... - 80%
Laagste 30-jaars rente
3,34% - Centraal Beheer Groen... - NHG
3,64% - Argenta Groen Hypothee... - 80%
Hypotheek:
Bruto maandlasten: € 0 p/m
Netto maandlasten: € 0 p/m
Hoe berekenen we dit?
Het rentepercentage is gebaseerd op de laagste 10 jaars vaste rente voor één hypotheekdeel. De vermelde rente (2.88% met NHG) is gecontroleerd op 10-12-2025. Deze berekening is gebaseerd op een annuïteitenhypotheek die volledig wordt afgelost, waarbij de maandlasten gedurende de gehele looptijd gelijk blijven. De werkelijke rente en netto maandlasten kunnen variëren, afhankelijk van uw persoonlijke situatie en de hypotheekverstrekker. Raadpleeg een financieel adviseur voor een nauwkeurige berekening en advies. Aan deze berekening kunnen geen rechten worden ontleend; het dient enkel als indicatie.
Documentatie
Kadastrale kaart
Leefomgeving
Plattegronden PDF
WOZ waarderapport
Brochure
BAG uittreksel
Bezichtiging
Bod uitbrengen
Waardebepaling
Zoekopdracht
Alles downloaden
Zonnegrenzen bekijken
Op de kaart
Inwoners in Lelystad
Cijfers voor postcodegebied 8224
- Totaal aantal inwoners
- 7130 inwoners
- Mannen
- 50%
- Vrouwen
- 50%
Inwoners in Lelystad
Cijfers voor postcodegebied 8224
- tot 15 jaar
- 18%
- 15 tot 25 jaar
- 11%
- 25 tot 35 jaar
- 25%
- 45 tot 65 jaar
- 24%
- 65 en ouder
- 22%
Huishoudens in Lelystad
Cijfers voor postcodegebied 8224
- Eenpersoons zonder kinderen
- 42%
- Meerpersoons zonder kinderen
- 24%
- Huishoudens zonder kinderen
- 66%
Huishoudens in Lelystad
Cijfers voor postcodegebied 8224
- Huishoudens met één kind
- 10%
- Huishoudens met meerdere kinderen
- 24%
- Huishoudens met kinderen
- 34%
Woningen in Lelystad
Cijfers voor postcodegebied 8224
- Woningen voor 1945
- 1%
- Woningen tussen 1945 en 1965
- 1%
- Woningen tussen 1965 en 1975
- 39%
- Woningen tussen 1975 en 1985
- 52%
- Woningen tussen 1985 en 1995
- 2%
Woningen in Lelystad
Cijfers voor postcodegebied 8224
- Woningen tussen 1995 en 2005
- 3%
- Woningen tussen 2005 en 2015
- 2%
- Woningen na 2015
- 3%
- Huurwoningen
- 50%
- Koopwoningen
- 50%
Overige in Lelystad
Cijfers voor postcodegebied 8224
- Gemiddelde WOZ waarde
- € 165.000,-
- Personen onder de 65 met uitkering
- 12%
Overige in Lelystad
Cijfers voor postcodegebied 8224
- Adressen per km²
- 1973
- Stedelijkheid (schaal 1 op 5)
- 80%
Korte feiten over Lelystad
Lelystad is de hoofdstad van de Nederlandse provincie Flevoland. De stad ligt in Oostelijk Flevoland en is daarvan de grootste stad, maar de gemeente ligt deels ook in Zuidelijk Flevoland.
WT Wonen
Indien u vragen heeft of u wilt een bezichtiging inplannen, dan kunt u gebruik maken van het formulier hiernaast. Er zal daarna op korte termijn contact met u worden opgenomen.
Contact opnemen
WTWonen
Een creatieve benadering, maatwerk en zekerheid. Maar zeker ook vakmanschap, vertrouwen en eerlijkheid. WTWonen heeft dat allemaal in huis; onder één dak.
Nieuwste reviews
-
Valentyna Kok
Vanaf het eerste contact tot aan de overdracht verliep de samenwerking met WT Wonen soepel. De communicatie was duidelijk en vlot, en we kre...
-
Harvey Sing
Bij één van die bezichtigingen tipte hij ons op een woning in Zeewolde die exact aansloot bij onze wensen. Ramon regelde direct een bezicht...
-
Ramon Klaasen
Beoordeeld met een 5